4661 Marine LoopCrestview, FL 32539




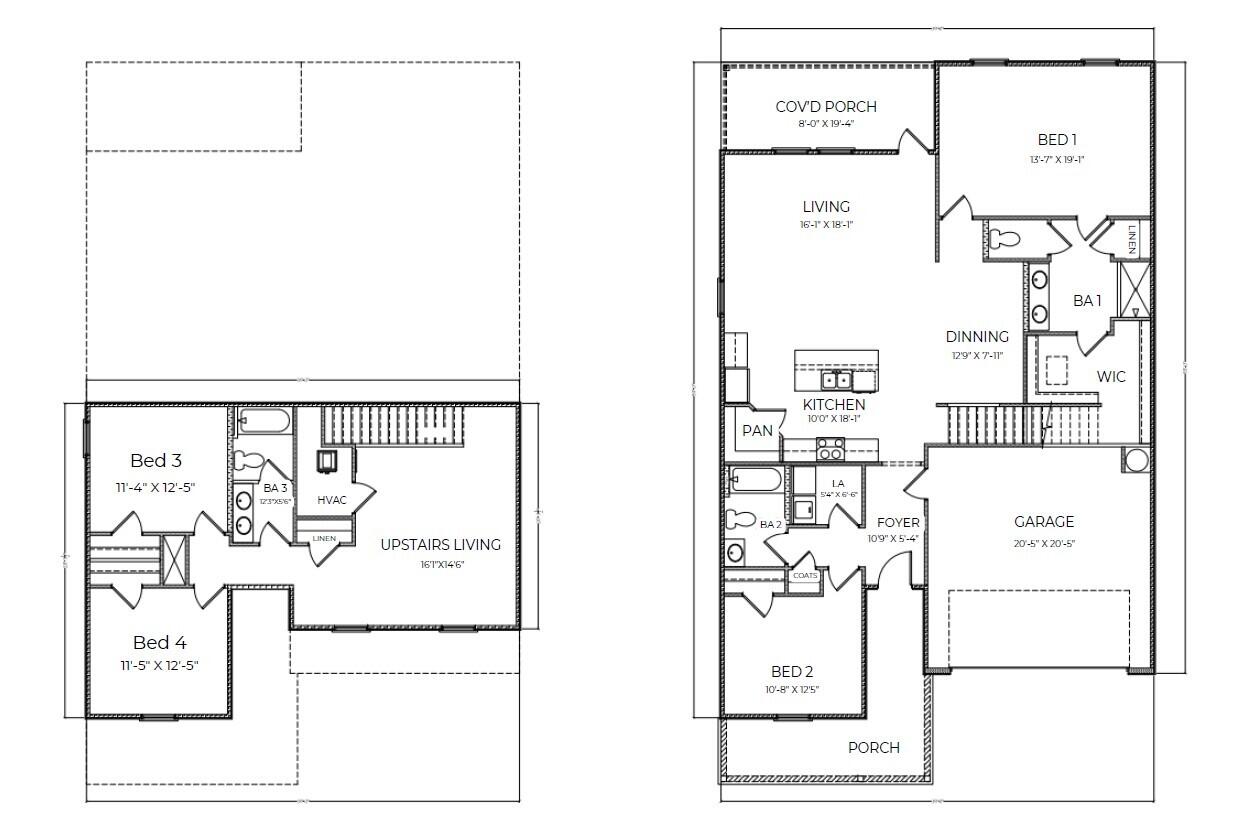
The 'OZARK' is a well-designed 2 story model with 2 bedrooms '&' a living room on 'EACH' level. Highly desirable open concept. The kitchen, living room & dining area flow together for relaxed living & entertaining. The open kitchen features: all stainless-steel appliances, corner pantry, Quartz countertops, nice island, smooth-top range, built in microwave & quiet dishwasher. The stairway, right off the kitchen for ease of access for both levels. Bedroom 1 offers a spacious walk-in closet; the adjoining bath has a double vanity & lg. shower.The Smart Home 'Connect' System has several convenient devices. Easy drive to the airport, military base, beaches at Ft. Walton, Destin area & just minutes to golfing.
| 2 weeks ago | Listing updated with changes from the MLS® | |
| 2 weeks ago | Price changed to $399,900 | |
| 2 months ago | Listing first seen on site |
Listing information is provided by Participants of the Emerald Coast Association of Realtors MLS. IDX information is provided exclusively for personal, non-commercial use, and may not be used for any purpose other than to identify prospective properties consumers may be interested in purchasing. Information is deemed reliable but not guaranteed. Copyright 2025, Emerald Coast Association of Realtors MLS.
Last checked: 2025-11-07 12:23 PM UTC

Did you know? You can invite friends and family to your search. They can join your search, rate and discuss listings with you.